For Athletes, By Athletes, SINCE 2003

phone: 888-575-2178

BISON

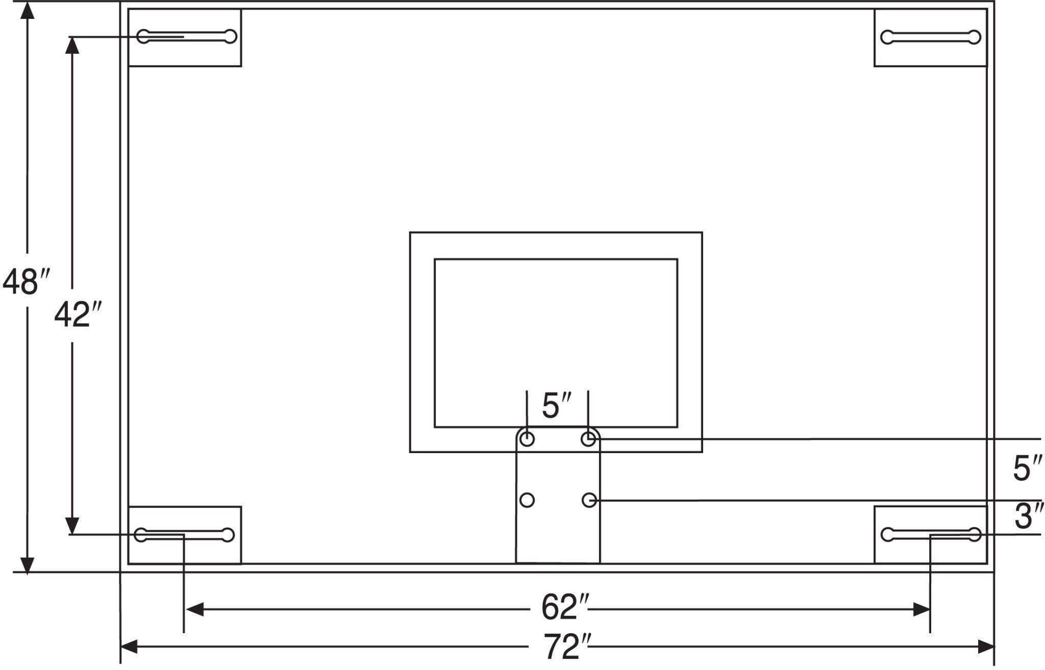
48" x 72" Tall Glass Competition Backboard

MSRP: $1,361.00
$1,309.99
( saved $51.01 )
No reviews yet Write a Review
SKU:
BA48
UPC:
090053300561

Built-in support structure absorbs over 98% of the stress from goal contact without transferring it to the glass… Goal is mounted "off glass" so even excessive hanging and abuse will not cause stress • Never again be concerned about the risk of injury or inconvenience of glass breakage • All Bison competition glass backboards are pre-drilled for quick installation of original DuraSkin backboard padding.

Traditional size, improved quality • This 48" x 72" board is a common fixture in gyms across the US and meets all appropriate rules for competition play • Board features 42" x 62" structure mounting pattern and 5" x 5" goal mounting pattern and will replace virtually any manufacturer's original tall glass backboard • 10-year limited warranty. Approx. shipping weight: 210#; Truck

Caution: Studies have demonstrated that 42" x 72" glass backboards reduce the risk of player injury from backboard contact. BA42XL and BA42XLC are recommended for all new installations and fan-to-rectangle conversions. Bison makes 48" x 72" backboards available ONLY for replacement applications..